7354 Foxbriar DriveLeland, NC 28451




Mortgage Calculator
Monthly Payment (Est.)
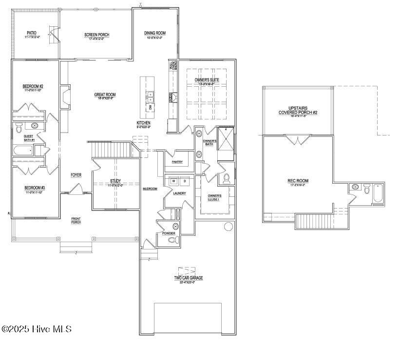
$3,558Welcome to The Wells at Creek Side in Brunswick Fores built by Legacy Homes by Bill Clarkt! This stunning move-in-ready new construction home offers 2,646 square feet of thoughtfully designed living space with 3 bedrooms, 3.5 bathrooms, a main-level study, and an upstairs recreation room. The heart of this home is the open-concept great room, dining room, and gourmet kitchen that flows seamlessly together, perfect for entertaining and everyday living. The prestige kitchen features a large island, premium appliances including a 30'' gas cooktop and wall oven, quartz countertops, and full overlay soft-close cabinets. The main level also includes a dedicated study, walk-in pantry, spacious mudroom, and convenient powder room. Hardwood flooring flows throughout the main living areas, primary bedroom, and study, while floor-to-ceiling shiplap accent walls brighten the main space and add coastal charm. The owner's suite is privately located on the first floor and features a luxurious bathroom with an oversized zero-entry shower, dual vanities with marble countertops, and a linen closet. The owner's walk-in closet includes custom white wood shelving for optimal organization. Two additional bedrooms are located on the opposite side of the first floor. Upstairs is a versatile recreation room perfect for a media room, game room, or additional living space. The recreation room is truly special with floor-to-ceiling shiplap accent walls, built-in cabinets with beverage fridge, and French doors opening to an airy covered porch. The thoughtful floor plan maximizes both privacy and togetherness with the perfect balance of gathering spaces and quiet retreats. This is coastal Carolina living at its finest!
| 4 months ago | Listing first seen on site | |
| 8 months ago | Listing updated with changes from the MLS® |
The data relating to real estate on this website comes in part from the Internet Data Exchange program of Hive MLS, and is updated as of 2026-02-28 08:35 AM UTC. All information is deemed reliable but not guaranteed and should be independently verified. All properties are subject to prior sale, change, or withdrawal. Neither listing broker(s) shall be responsible for any typographical errors, misinformation, or misprints, and shall be held totally harmless from any damages arising from reliance upon these data. Copyright 2026 Hive MLS

Did you know? You can invite friends and family to your search. They can join your search, rate and discuss listings with you.